Am Alten Reiterhof / Reihen – und Einfamilienhäuser

Glücksburg 2022

Standort
Glücksburg / Ostsee
Beauftragung
LPH 1-8
Bearbeitungszeit
05/2020
-04/2023
Bauherr
Privat
Nutzung
Wohnen
Bruttogeschossfläche
EFH 2.145 m² / RH 1.350 m²
Nutzfläche
EFH 1.090m² / RH 900 m²
Status
Fertiggestellt

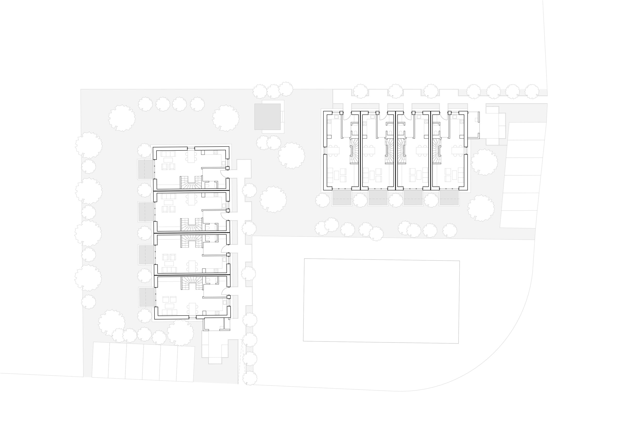
Das gesamte Bauvorhaben „Am alten Reiterhof“ umfasst 4 Einfamilienhäuser, 8 Reihenhäuser und 3 Mehrfamilienhäuser. Die Planung erfolgte auf der Grundlage eines Bebauungsplanes. Die Realisierung wird in drei Bauabschnitten durchgeführt. Die Reihen – und Einfamilienhäuser stellen den 1. und 2. Bauabschnitt dar und wurden im September 2022 fertiggestellt.